© 2026 ARGISOL-Wohnbau GmbH, all rights reserved
Impressum | Datenschutz
Powered by www.raystorm.com
Ein klassisches Einfamilienhaus mit integrierter Garage, dessen Ausstrahlung zum einen durch das versetzte Pultdach, zum anderen durch einen Materialmix unterstrichen wird.
222 m² verteilen sich auf 2 Geschosse und bieten Lebensfreude pur. Die große Sonnenterrasse, sowie der darüber liegende, überdachte Balkon laden zum relaxen ein.
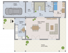
Gesamtfläche: 221,97 m²
Grundriss Erdgeschoss
| Essen/Wohnen | 41,00 m² |
| Kochen | 8,04 m² |
| Gast | 10,01 m² |
| Windfang | 3,86 m² |
| Bad | 4,27 m² |
| Flur | 6,67 m² |
| HWR | 6,83 m² |
| Terrasse | 22,18 m² |
| Garage | 18,58 m² |
Grundriss Dachgeschoss
| Kind 1 | 18,58 m² |
| Bad 1 | 4,26 m² |
| Flur | 9,24 m² |
| Bad 2 | 4,27 m² |
| Kind 2 | 10,01 m² |
| Schlafen 2 | 19,63 m² |
| Schlafen 1 | 20,78 m² |
| Ankleide | 3,86 m² |
| Bad 3 | 8,04 m² |
| Balkon 1 | 3,78 m² |
| Balkon 2 | 16,66 m² |


